Investment Overview
More Information
A fully entitled, shovel-ready luxury hotel development in the heart of Hollywood — one of Los Angeles' most sought-after hospitality corridors.
A Rare, Hollywood Development
The Opportunity
Positioned in the heart of Hollywood, this fully entitled luxury hotel development presents a rare opportunity to acquire a shovel-ready project in one of Los Angeles' most sought-after hospitality corridors.
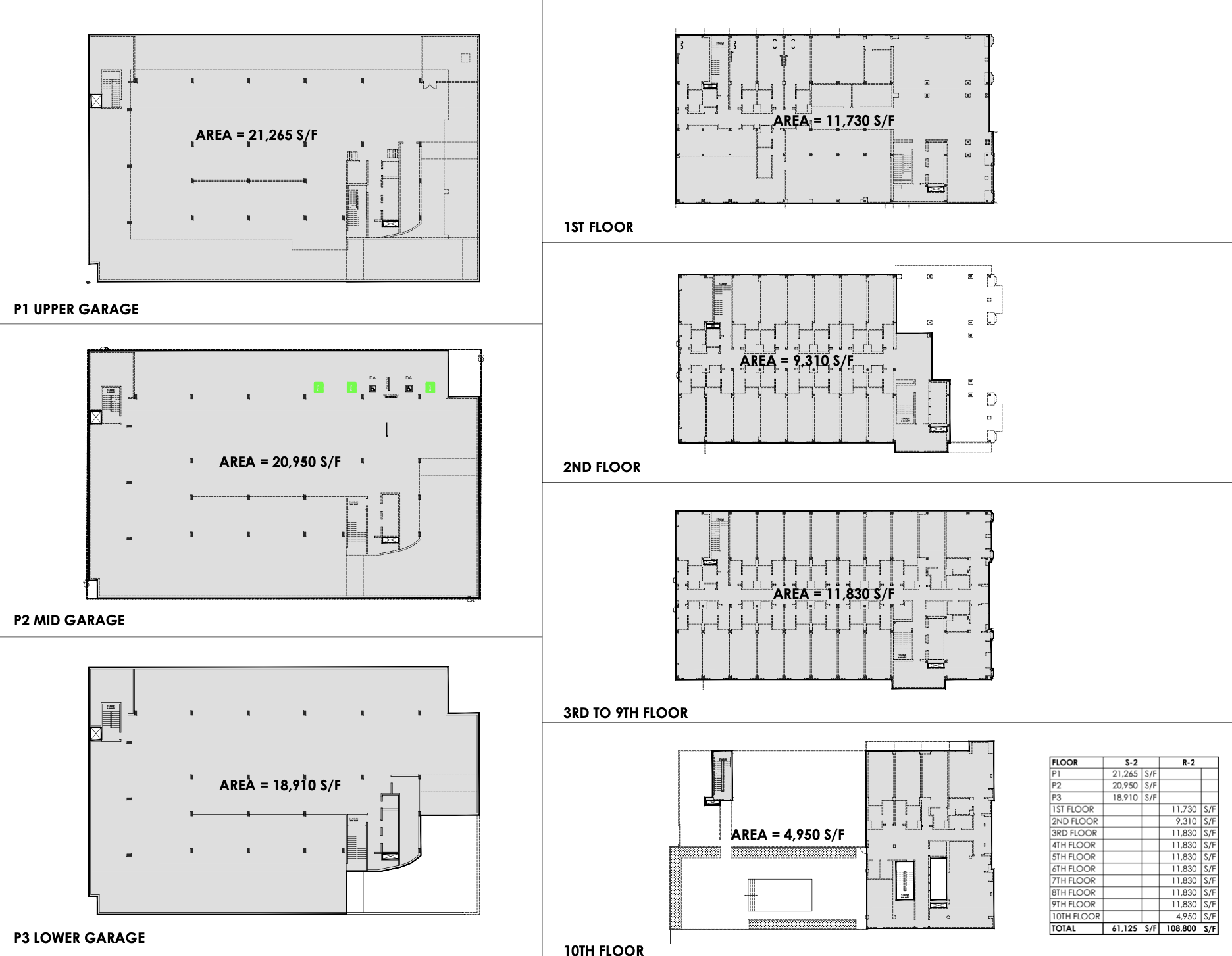
The project is approved for a 10-story, 156-room hotel with a rooftop amenity deck and subterranean parking, designed to capture both tourism and lifestyle-driven demand.
1719 N Whitley Ave, Hollywood, CA 90028
156
10
99,375
122
Guest Rooms
Stories
Square Feet
Parking Spaces
Type I-B Construction
Rooftop Pool + Lounge
21,645 SF Lot
R5 Zoning
Risk Reduced, Ready to Execute
This project has successfully navigated the most time-consuming and risky phase of development. All critical entitlements are secured, significantly reducing timeline risk and allowing a developer to move directly into execution.
-
Site Plan Review Approved by City of Los Angeles
-
Categorical CEQA Exemption Granted — reduces entitlement risk
-
Approved for hotel use (156 rooms)
-
Approved for rooftop amenities and pool deck
-
Approved for food & beverage operations
"This is not a concept — this is a ready-to-execute opportunity. Entitlements complete, design direction established, no density cap limitations."
Entitlements & Approvals
Elevated Rooftop Experiences
The rooftop program is a key differentiator — creating an opportunity for a destination bar & lounge, poolside activation, private events, and premium revenue streams.
Strong Street Presence
A commanding arrival experience with ground-floor lobby, coffee shop, lounge with outdoor seating, and retail-ready spaces that activate the streetscape.
Strong Street Presence
Modern Urban Hospitality
Private Events & Premium Revenue
Design & Experience Vision
High-Efficiency Guestroom Layouts
156 rooms across floors 2 through 10, with 141 standard rooms and 15 suites, optimized for operational efficiency and guest comfort.
Lifestyle-Driven Amenities
Rooftop pool, firepit terrace, fitness center, snack bar, and business center — all aligned with the lifestyle demands of the Hollywood market.
Poolside Activation
Building Specifications
Room Distribution & Floor Area
Architectural Documents
Plans & Drawings
Plans & Drawings Gallery
Click any drawing to view in full resolution.
Market Positioning
Hollywood's Premier Hospitality Corridor
Located within the Hollywood Community Plan area, the project benefits from sustained high tourism demand, proximity to entertainment, nightlife, and major studios.
-
High tourism demand with year-round visitor traffic
-
Proximity to entertainment, nightlife, and studios
-
Prime urban infill location with strong unit count
-
No density cap limitations on the site
Development Advantage
-
Entitlements Complete
-
Design Established
-
No Density Cap
-
Strong Unit Count


